Eckdaten
- Art Etagenwohnung
- Lage 25492 Heist
- Miete zzgl. NK 780,00 €
- Wohnfläche 57.54 m²
- Zimmer 2
- Baujahr 2022
- Heizungsart Gas-Heizung
- Stellplatztyp Aussenstellplatz
- Garagenanzahl 1
- Bezugstermin nach Vereinbarung
- Zustand Neuwertig
- Immobilien-ID 7363
Immobilie
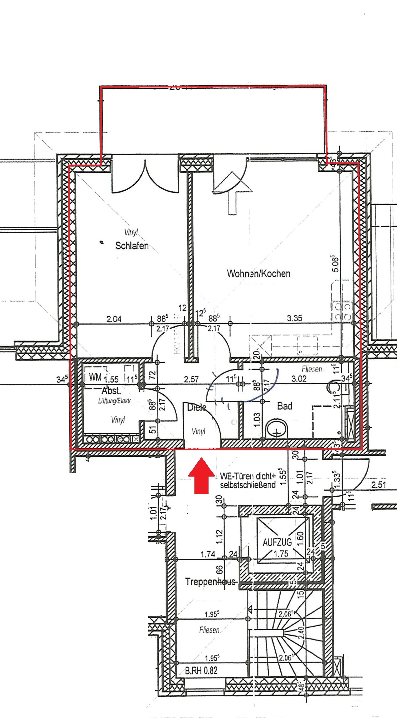
Diese exklusive 2-Zimmer-Neubauwohnung befindet sich in einem im Jahr 2022 Gebäude und bietet höchsten Wohnkomfort im Zweitbezug. Die Wohnfläche erstreckt sich über 57 m², die sich in Schlafzimmer und offener Wohnküche aufteilen. Besonders macht die Wohnung die gut durchdachte Wohnflächenaufteilung und die hochwertige Ausstattung dieser Wohnung.
Raumaufteilung:
Die Wohnung besteht aus einem Flur, einem Schlafzimmer, einem offenen und heller Wohnzimmer mit gut ausgestatteter Küche, die durch ihre hochwertigen Bestandteile heraussticht. Es besteht die Möglichkeit einen Esstisch neben der Küche zu integrieren.
Das Wohnzimmer bietet ausreichend Platz um es ganz nach seinen Wünschen und Vorstellungen zu gestalten, durch die große Fensterfront fällt ausreichend Licht in das gemütliche Wohn-/Esszimmer. Außerdem verfügt die Wohnung über zwei direkte Zugänge zum sonnigen Balkon (Wohnküche und Schlafzimmer), der ideal dazu geeignet ist um mit einem schönen Blick über Bäume zu entspannen. Hinzu kommt das modern ausgestattete Badezimmer mit bodengleicher Dusche. Des Weiteren steht Ihnen ein praktischer Abstellraum innerhalb der Wohnung zur Verfügung.
Ferner befindet ein großzügiger Abstellraum auf selbiger Etage der Immobilie ebenfalls zur Verfügung.
Die Beheizung der Immobilie erfolgt über eine Gaszentralheizung.
Ein PKW Stellplatz ist der Wohnung zugeordnet und verfügt über ein Wallbox-Anschluss.
Ein weiterer PKW-Stellplatz (€ 30,-- p.M.) kann auf Wunsch angemietet werden.
Insgesamt präsentiert sich diese Neubauwohnung als perfektes zuhause für anspruchsvolle Mieter, die modernes Wohnen in einer komfortablen Umgebung schätzen. Wir laden Sie herzlich dazu ein, diese Wohnung persönlich zu besichtigen und sich von ihren Vorzügen zu überzeugen. Bei Interesse stehe ich Ihnen gerne für weitere Informationen und Terminvereinbarungen zur Verfügung.
Raumaufteilung:
Die Wohnung besteht aus einem Flur, einem Schlafzimmer, einem offenen und heller Wohnzimmer mit gut ausgestatteter Küche, die durch ihre hochwertigen Bestandteile heraussticht. Es besteht die Möglichkeit einen Esstisch neben der Küche zu integrieren.
Das Wohnzimmer bietet ausreichend Platz um es ganz nach seinen Wünschen und Vorstellungen zu gestalten, durch die große Fensterfront fällt ausreichend Licht in das gemütliche Wohn-/Esszimmer. Außerdem verfügt die Wohnung über zwei direkte Zugänge zum sonnigen Balkon (Wohnküche und Schlafzimmer), der ideal dazu geeignet ist um mit einem schönen Blick über Bäume zu entspannen. Hinzu kommt das modern ausgestattete Badezimmer mit bodengleicher Dusche. Des Weiteren steht Ihnen ein praktischer Abstellraum innerhalb der Wohnung zur Verfügung.
Ferner befindet ein großzügiger Abstellraum auf selbiger Etage der Immobilie ebenfalls zur Verfügung.
Die Beheizung der Immobilie erfolgt über eine Gaszentralheizung.
Ein PKW Stellplatz ist der Wohnung zugeordnet und verfügt über ein Wallbox-Anschluss.
Ein weiterer PKW-Stellplatz (€ 30,-- p.M.) kann auf Wunsch angemietet werden.
Insgesamt präsentiert sich diese Neubauwohnung als perfektes zuhause für anspruchsvolle Mieter, die modernes Wohnen in einer komfortablen Umgebung schätzen. Wir laden Sie herzlich dazu ein, diese Wohnung persönlich zu besichtigen und sich von ihren Vorzügen zu überzeugen. Bei Interesse stehe ich Ihnen gerne für weitere Informationen und Terminvereinbarungen zur Verfügung.
Lage
Das Objekt befindet sich im Herzen der schönen Gemeinde Heist. Der DRK- Waldkindergarten, die erweiterte Grundschule, die neue Sporthalle und der Sportplatz, Allgemeinärzte, Zahnärzte, Apotheke, das Seniorenheim und diverse Einkaufsmöglichkeiten sind fußläufig zu erreichen. Eine gute Anbindung nach Elmshorn, Uetersen und Wedel ist durch eine Bushaltestelle in wenigen Gehminuten gewährleistet.
Ausstattung
Aufzug: Ein Aufzug erleichtert den Zugang zur Wohnung und macht sie besonders komfortabel.
Fußbodenheizung: Genießen Sie angenehme Wärme in allen Räumen dank der Fußbodenheizung.
Wohnraumbelüftung: Die Wohnung verfügt über eine moderne Wohnraumbelüftung, die für ein angenehmes Raumklima sorgt.
Elektrische Außenrollläden: Es sind elektrische Außenrollläden angebracht, die sowohl den Sonnenschutz als auch die Privatsphäre gewährleisten.
Glasfaseranschluss: Die Wohnung ist mit einem Glasfaseranschluss ausgestattet, um eine schnelle und zuverlässige Internetverbindung zu gewährleisten.
Bodenbeläge: Die Wohnräume sind bis auf die Badezimmer mit hochwertigem Vinyl ausgelegt, was nicht nur pflegeleicht, sondern auch ästhetisch ansprechend ist.
Badezimmer: Die Badezimmer sind modern gefliest und verfügen über bodengleiche Duschen, die ein zeitgemäßes und komfortables Badeerlebnis ermöglichen.
PKW-Stellplatz: Mit Wallbox-Anschluss für Elektroautos.
Fußbodenheizung: Genießen Sie angenehme Wärme in allen Räumen dank der Fußbodenheizung.
Wohnraumbelüftung: Die Wohnung verfügt über eine moderne Wohnraumbelüftung, die für ein angenehmes Raumklima sorgt.
Elektrische Außenrollläden: Es sind elektrische Außenrollläden angebracht, die sowohl den Sonnenschutz als auch die Privatsphäre gewährleisten.
Glasfaseranschluss: Die Wohnung ist mit einem Glasfaseranschluss ausgestattet, um eine schnelle und zuverlässige Internetverbindung zu gewährleisten.
Bodenbeläge: Die Wohnräume sind bis auf die Badezimmer mit hochwertigem Vinyl ausgelegt, was nicht nur pflegeleicht, sondern auch ästhetisch ansprechend ist.
Badezimmer: Die Badezimmer sind modern gefliest und verfügen über bodengleiche Duschen, die ein zeitgemäßes und komfortables Badeerlebnis ermöglichen.
PKW-Stellplatz: Mit Wallbox-Anschluss für Elektroautos.
Sonstiges
Wir bitten um Verständnis, dass wir nur E-Mail-Anfragen bearbeiten können, die Angaben zu Namen, Anschrift und Telefonnummer enthalten. Von Vorteil sind komplette Angaben mit Mobiltelefonnummer und E-Mail-Adresse.
Wir weisen ausdrücklich darauf hin, dass die von uns weitergegebenen Objektinformationen, Unterlagen, Pläne etc. vom Verkäufer bzw. Vermieter stammen. Eine Haftung für die Richtigkeit oder Vollständigkeit der Angaben übernehmen wir - trotz selbstverständlicher Überprüfung nach bestem Wissen und Gewissen auf Fehler – daher nicht. Es obliegt unseren Kunden, die darin enthaltenen Objektinformationen und Angaben auf ihre Richtigkeit hin zu überprüfen.
Alle Immobilienangebote sind freibleibend und vorbehaltlich Irrtümer, Zwischenverkauf- und Vermietung oder sonstiger Zwischenverwertung.
Eine Mindestmietdauer von 24 Monaten ist erwünscht.
Wir weisen ausdrücklich darauf hin, dass die von uns weitergegebenen Objektinformationen, Unterlagen, Pläne etc. vom Verkäufer bzw. Vermieter stammen. Eine Haftung für die Richtigkeit oder Vollständigkeit der Angaben übernehmen wir - trotz selbstverständlicher Überprüfung nach bestem Wissen und Gewissen auf Fehler – daher nicht. Es obliegt unseren Kunden, die darin enthaltenen Objektinformationen und Angaben auf ihre Richtigkeit hin zu überprüfen.
Alle Immobilienangebote sind freibleibend und vorbehaltlich Irrtümer, Zwischenverkauf- und Vermietung oder sonstiger Zwischenverwertung.
Eine Mindestmietdauer von 24 Monaten ist erwünscht.
Energieausweisangaben
- Enerigeausweistyp Bedarfsausweis
- Energiekennwert 21.9 KWh(m²*a)
- Energieeffizienzklasse A+
- Energieausweis erstellt am 20.07.2022
- Energieausweis gültig bis 19.07.2032
- Heizungsart Gas-Heizung
- Befeuerung / Energieträger Gas
















