Eckdaten
- Art Einfamilienhaus
- Lage 25495 Kummerfeld
- Kaufpreis 429.000,00 €
- Wohnfläche 120 m²
- Grundstück 645 m²
- Zimmer 4
- Baujahr 1976
- Heizungsart Gas-Heizung
- Stellplatztyp Garage
- Stellplatzanzahl 2
- Vermietet Nein
- Bezugstermin nach Vereinbarung
- Zustand Modernisiert
- Immobilien-ID 7413
- Provision 3% inkl. MwSt.
Immobilie
In einer ruhigen 30-Zone von Kummerfeld, nur wenige Minuten vor den Toren Hamburgs, erwartet Sie dieses charmante Fertigbau-Einfamilienhaus aus dem Jahr 1977. Mit ca. 120,19 m² Wohnfläche, einem 645 m² großen Grundstück und einer durchdachten sowie familienfreundlichen Raumaufteilung ist dieses Zuhause ideal für Familien und Menschen, die Ruhe, Natur und eine hervorragende Anbindung gleichermaßen schätzen.
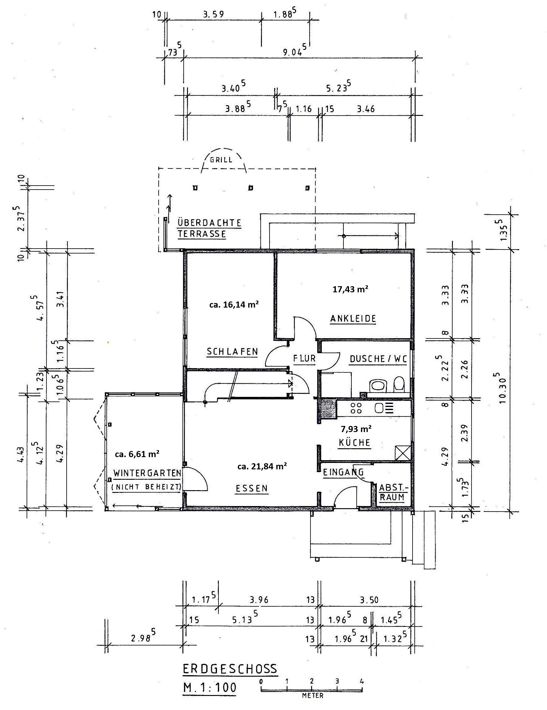
Bereits der Windfang sorgt für ein angenehmes Ankommen und führt in den zentralen Flur des Erdgeschosses. Hier steht Ihnen ein Wohn- und Essbereich mit direktem Zugang zur Einbauküche, die 2024 erneuert wurde, sowie zwei weitere flexibel nutzbare Zimmer zur Verfügung, die sich ideal als Kinder-, Arbeits- oder Gästezimmer eignen. Ein großzügiges und modernes Duschbad aus 2017 ergänzt das Erdgeschoss. Des Weiteren gelangen Sie direkt in den sonnigen Wintergarten mit Blick in den Garten. Eine praktische Abstellkammer rundet das Erdgeschoss ab.
Im Dachgeschoss erwartet Sie ein großzügiger, heller und ausgesprochen einladender Wohnraum. Der Bereich wurde 2017 modernisiert und präsentiert sich in einem sehr gepflegten Zustand. Mit vergleichsweise geringem Aufwand lässt sich dieser Raum zudem in zwei vollwertige Zimmer unterteilen – perfekt für wachsende Platzbedürfnisse oder flexible Nutzungskonzepte.
Der Vollkeller mit einer beeindruckenden Raumhöhe von ca. 2,30 m bietet großzügige Nutzfläche und eröffnet zahlreiche Möglichkeiten. Dank Fenstern, Heizung und einem 2024 teilerneuerten Badezimmer eignet sich dieser Bereich hervorragend als Hobbyraum, Fitnessbereich, Werkstatt oder Gästebereich. Die vorhandene Drainage sorgt zudem für einen trockenen Keller.
Ein Haus, das durch seinen gepflegten Zustand, die durchdachte Raumaufteilung und die sonnige Terrasse überzeugt – ideal für Familien, die Platz, Ruhe und Lebensqualität suchen.
Bereits der Windfang sorgt für ein angenehmes Ankommen und führt in den zentralen Flur des Erdgeschosses. Hier steht Ihnen ein Wohn- und Essbereich mit direktem Zugang zur Einbauküche, die 2024 erneuert wurde, sowie zwei weitere flexibel nutzbare Zimmer zur Verfügung, die sich ideal als Kinder-, Arbeits- oder Gästezimmer eignen. Ein großzügiges und modernes Duschbad aus 2017 ergänzt das Erdgeschoss. Des Weiteren gelangen Sie direkt in den sonnigen Wintergarten mit Blick in den Garten. Eine praktische Abstellkammer rundet das Erdgeschoss ab.
Im Dachgeschoss erwartet Sie ein großzügiger, heller und ausgesprochen einladender Wohnraum. Der Bereich wurde 2017 modernisiert und präsentiert sich in einem sehr gepflegten Zustand. Mit vergleichsweise geringem Aufwand lässt sich dieser Raum zudem in zwei vollwertige Zimmer unterteilen – perfekt für wachsende Platzbedürfnisse oder flexible Nutzungskonzepte.
Der Vollkeller mit einer beeindruckenden Raumhöhe von ca. 2,30 m bietet großzügige Nutzfläche und eröffnet zahlreiche Möglichkeiten. Dank Fenstern, Heizung und einem 2024 teilerneuerten Badezimmer eignet sich dieser Bereich hervorragend als Hobbyraum, Fitnessbereich, Werkstatt oder Gästebereich. Die vorhandene Drainage sorgt zudem für einen trockenen Keller.
Ein Haus, das durch seinen gepflegten Zustand, die durchdachte Raumaufteilung und die sonnige Terrasse überzeugt – ideal für Familien, die Platz, Ruhe und Lebensqualität suchen.
Lage
Kummerfeld liegt nördlich der Kreisstadt Pinneberg und gilt als beliebte Wohngemeinde im Hamburger Umland. Über die A23 erreichen Sie das Hamburger Randgebiet in nur etwa 15 Minuten. Der Ort ist zudem optimal an den HVV angebunden: Mit der Buslinie 185 gelangen Sie in weniger als 20 Minuten zum Bahnhof Pinneberg – ideal für Pendler.
Für Familien bietet Kummerfeld eine besonders angenehme Infrastruktur: Zwei Kindergärten und eine Grundschule sind vor Ort, ebenso wie ein aktiver Sportverein mit großem Sportgelände, einer Dreifeld-Sporthalle, Fußball- und Tennisplätzen, Beachvolleyballfeld, Streetball-Anlage und Leichtathletikanlage. Im Ort selbst finden Sie außerdem einen Tierarzt, eine Schlachterei, eine Gaststätte sowie ein Gewerbegebiet mit verschiedenen Betrieben. Weitere Versorgungseinrichtungen wie Lebensmittelmärkte, Ärzte, Krankenhaus und weiterführende Schulen befinden sich im nahegelegenen Pinneberg.
Für Naturliebhaber bietet das „Kummerfelder Gehege“ mit seinen weitläufigen Wanderwegen ideale Möglichkeiten zum Spazieren, Joggen oder Radfahren – ein Ort, der Ruhe, Erholung und Lebensqualität vereint.
Für Familien bietet Kummerfeld eine besonders angenehme Infrastruktur: Zwei Kindergärten und eine Grundschule sind vor Ort, ebenso wie ein aktiver Sportverein mit großem Sportgelände, einer Dreifeld-Sporthalle, Fußball- und Tennisplätzen, Beachvolleyballfeld, Streetball-Anlage und Leichtathletikanlage. Im Ort selbst finden Sie außerdem einen Tierarzt, eine Schlachterei, eine Gaststätte sowie ein Gewerbegebiet mit verschiedenen Betrieben. Weitere Versorgungseinrichtungen wie Lebensmittelmärkte, Ärzte, Krankenhaus und weiterführende Schulen befinden sich im nahegelegenen Pinneberg.
Für Naturliebhaber bietet das „Kummerfelder Gehege“ mit seinen weitläufigen Wanderwegen ideale Möglichkeiten zum Spazieren, Joggen oder Radfahren – ein Ort, der Ruhe, Erholung und Lebensqualität vereint.
Ausstattung
• Gas-Heizung 2024 erneuert
• Vollkeller mit Bad, Heizung, Fenstern und Drainage
• 2 Garagen
• größtenteils elektrische Rollläden
• Fertigbauhaus
• Renovierungen 2017: Wohnräume im DG, Bad im EG, Fenster, Sicherungskasten
• Renovierungen 2024: Bad im Keller, Einbauküche, Trinkwasserfilter am Hausanschluss neu
• Vollkeller mit Bad, Heizung, Fenstern und Drainage
• 2 Garagen
• größtenteils elektrische Rollläden
• Fertigbauhaus
• Renovierungen 2017: Wohnräume im DG, Bad im EG, Fenster, Sicherungskasten
• Renovierungen 2024: Bad im Keller, Einbauküche, Trinkwasserfilter am Hausanschluss neu
Sonstiges
Bitte haben Sie Verständnis, dass wir nur Anfragen mit vollständigen Kontaktdaten (Name, Anschrift, Telefonnummer und idealerweise E-Mail-Adresse) bearbeiten können.
Alle Angaben zum Objekt basieren auf Informationen des Verkäufers. Trotz sorgfältiger Prüfung übernehmen wir keine Gewähr für die Vollständigkeit oder Richtigkeit der Angaben. Eine eigenständige Prüfung durch den Käufer wird empfohlen.
Unsere Angebote sind freibleibend. Irrtümer, Zwischenverkauf oder Änderungen bleiben ausdrücklich vorbehalten.
Die Nachweis- oder Vermittlungsprovision beträgt 3 % des notariellen Kaufpreises inklusive 19 % MwSt. und ist mit Abschluss des notariellen Kaufvertrags fällig und verdient.
Alle Angaben zum Objekt basieren auf Informationen des Verkäufers. Trotz sorgfältiger Prüfung übernehmen wir keine Gewähr für die Vollständigkeit oder Richtigkeit der Angaben. Eine eigenständige Prüfung durch den Käufer wird empfohlen.
Unsere Angebote sind freibleibend. Irrtümer, Zwischenverkauf oder Änderungen bleiben ausdrücklich vorbehalten.
Die Nachweis- oder Vermittlungsprovision beträgt 3 % des notariellen Kaufpreises inklusive 19 % MwSt. und ist mit Abschluss des notariellen Kaufvertrags fällig und verdient.
Energieausweisangaben
- Enerigeausweistyp Bedarfsausweis
- Energiekennwert 197.1 KWh(m²*a)
- Energieeffizienzklasse F
- Energieausweis erstellt am 26.11.2025
- Energieausweis gültig bis 25.11.2035
- Heizungsart Gas-Heizung
- Befeuerung / Energieträger Gas
























