Eckdaten
- Art Etagenwohnung
- Lage 25436 Uetersen
- Miete zzgl. NK 1.260,00 €
- Wohnfläche 89.88 m²
- Zimmer 4
- Baujahr 2024
- Heizungsart Holz-Pelletheizung
- Stellplatztyp Aussenstellplatz
- Garagenanzahl 1
- Bezugstermin 01.06.2026
- Ausstattung des Bades Dusche, Badewanne, Fenster
- Zustand Neuwertig
- Immobilien-ID 7419
Immobilie
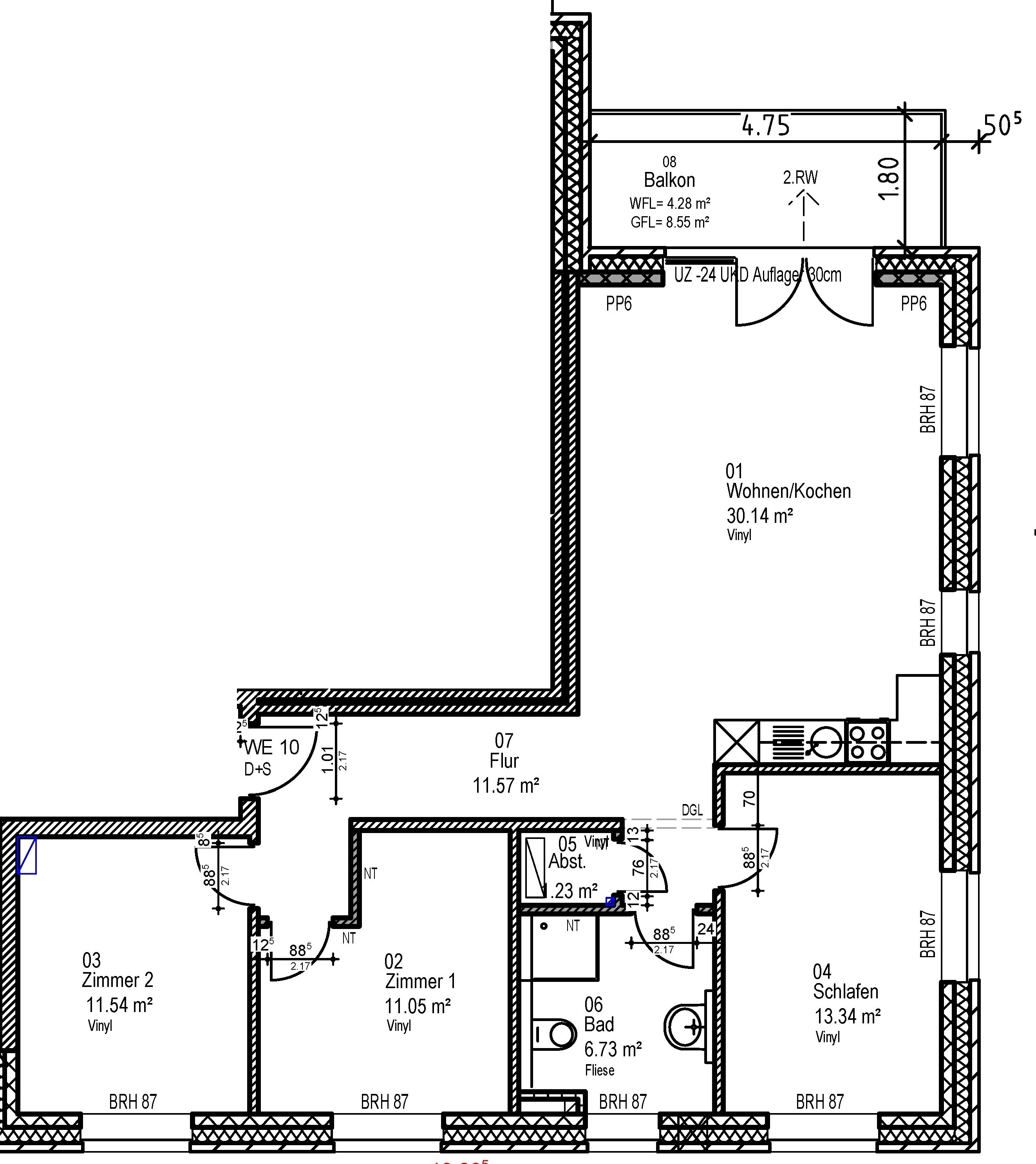
Diese exklusive 4-Zimmer--Wohnung befindet sich in einem in einem kürzlich fertiggestellten Gebäude und bietet höchsten Wohnkomfort. Die großzügige Wohnfläche von ca. 89,88 m² erstreckt sich über drei Schlafzimmer sowie eine geräumige Wohnküche. Der gelungene Grundriss und die hochwertige Ausstattung machen diese Wohnung besonders attraktiv.
Raumaufteilung:
Die Wohnung besteht aus einem Flur, drei Schlafzimmern, einer einladenden Wohnküche sowie einem modernen Duschbad. Die EBK ist mit hochwertigen Elektrogeräten ausgestattet. Die Wohnküche bietet nicht nur hervorragende Gestaltungsmöglichkeiten, sondern auch den direkten Zugang zum sonnigen Balkon. Dieser lädt zu entspannten Stunden im Freien ein. Des Weiteren steht Ihnen ein praktischer Abstellraum/HWR innerhalb der Wohnung zur Verfügung. Ein großzügiger Kellerraum steht Ihnen im Keller der Immobilie ebenfalls zur Verfügung.
Der Immobilie ist ein PKW-Stellplatz zugeordnet. Auf Wunsch kann ein weiterer Stellplatz angemietet werden.
Raumaufteilung:
Die Wohnung besteht aus einem Flur, drei Schlafzimmern, einer einladenden Wohnküche sowie einem modernen Duschbad. Die EBK ist mit hochwertigen Elektrogeräten ausgestattet. Die Wohnküche bietet nicht nur hervorragende Gestaltungsmöglichkeiten, sondern auch den direkten Zugang zum sonnigen Balkon. Dieser lädt zu entspannten Stunden im Freien ein. Des Weiteren steht Ihnen ein praktischer Abstellraum/HWR innerhalb der Wohnung zur Verfügung. Ein großzügiger Kellerraum steht Ihnen im Keller der Immobilie ebenfalls zur Verfügung.
Der Immobilie ist ein PKW-Stellplatz zugeordnet. Auf Wunsch kann ein weiterer Stellplatz angemietet werden.
Lage
Die Immobilie befindet sich in zentraler Wohnlage von Uetersen. Die Umgebung ist geprägt von älteren Siedlungshäusern sowie einigen neuen Mehrfamilienhäusern.
Sämtliche Schulen und Kindergärten sind binnen weniger Fahrminuten zu erreichen. Einkaufsmöglichkeiten für den täglichen Bedarf sind in der Uetersener Innenstadt (ca. 10 Gehminuten) anzutreffen. Eine Bushaltestelle ist in unmittelbarer Umgebung vorhanden.
Eine gute Anbindung nach Elmshorn, Uetersen und Pinneberg ist durch eine Bushaltestelle in wenigen Gehminuten gewährleistet. Der Tornescher Bahnhof ist in 5 Autominuten zu erreichen. Die BAB 23 erreichen Sie in 10-15 Autominuten über die Zufahrt in Tornesch.
Sämtliche Schulen und Kindergärten sind binnen weniger Fahrminuten zu erreichen. Einkaufsmöglichkeiten für den täglichen Bedarf sind in der Uetersener Innenstadt (ca. 10 Gehminuten) anzutreffen. Eine Bushaltestelle ist in unmittelbarer Umgebung vorhanden.
Eine gute Anbindung nach Elmshorn, Uetersen und Pinneberg ist durch eine Bushaltestelle in wenigen Gehminuten gewährleistet. Der Tornescher Bahnhof ist in 5 Autominuten zu erreichen. Die BAB 23 erreichen Sie in 10-15 Autominuten über die Zufahrt in Tornesch.
Ausstattung
ufzug: Ein Aufzug erleichtert den Zugang zur Wohnung und macht sie besonders komfortabel.
Fußbodenheizung: Genießen Sie angenehme Wärme in allen Räumen dank der Fußbodenheizung.
Wohnraumbelüftung: Die Wohnung verfügt über eine moderne Wohnraumbelüftung, die für ein angenehmes Raumklima sorgt.
Elektrische Außenrollläden: Auf der Südseite sind elektrische Außenrollläden angebracht, die sowohl den Sonnenschutz als auch die Privatsphäre gewährleisten.
Glasfaseranschluss: Die Wohnung ist mit einem Glasfaseranschluss ausgestattet, um eine schnelle und zuverlässige Internetverbindung zu gewährleisten.
Bodenbeläge: Die Wohnräume sind bis auf die Badezimmer mit hochwertigem Vinyl ausgelegt, was nicht nur pflegeleicht, sondern auch ästhetisch ansprechend ist.
Badezimmer: Die Badezimmer sind modern gefliest und verfügen über bodengleiche Duschen, die ein zeitgemäßes und komfortables Baderlebnis ermöglichen.
Insgesamt präsentiert sich diese Neubauwohnung als perfektes zuhause für anspruchsvolle Mieter, die modernes Wohnen in einer komfortablen Umgebung schätzen. Wir laden Sie herzlich dazu ein, diese Wohnung persönlich zu besichtigen und sich von ihren Vorzügen zu überzeugen. Bei Interesse stehe ich Ihnen gerne für weitere Informationen und Terminvereinbarungen zur Verfügung.
Fußbodenheizung: Genießen Sie angenehme Wärme in allen Räumen dank der Fußbodenheizung.
Wohnraumbelüftung: Die Wohnung verfügt über eine moderne Wohnraumbelüftung, die für ein angenehmes Raumklima sorgt.
Elektrische Außenrollläden: Auf der Südseite sind elektrische Außenrollläden angebracht, die sowohl den Sonnenschutz als auch die Privatsphäre gewährleisten.
Glasfaseranschluss: Die Wohnung ist mit einem Glasfaseranschluss ausgestattet, um eine schnelle und zuverlässige Internetverbindung zu gewährleisten.
Bodenbeläge: Die Wohnräume sind bis auf die Badezimmer mit hochwertigem Vinyl ausgelegt, was nicht nur pflegeleicht, sondern auch ästhetisch ansprechend ist.
Badezimmer: Die Badezimmer sind modern gefliest und verfügen über bodengleiche Duschen, die ein zeitgemäßes und komfortables Baderlebnis ermöglichen.
Insgesamt präsentiert sich diese Neubauwohnung als perfektes zuhause für anspruchsvolle Mieter, die modernes Wohnen in einer komfortablen Umgebung schätzen. Wir laden Sie herzlich dazu ein, diese Wohnung persönlich zu besichtigen und sich von ihren Vorzügen zu überzeugen. Bei Interesse stehe ich Ihnen gerne für weitere Informationen und Terminvereinbarungen zur Verfügung.
Sonstiges
Einige Digitalbilder stammen aus einer gleichwertigen Wohnung innerhalb des Hauses. Mögliche kurzfristige Änderungen in der Ausstattung können nicht ausgeschlossen werden.
Wir bitten um Verständnis, dass wir nur E-Mail-Anfragen bearbeiten können, die Angaben zu Namen, Anschrift und Telefonnummer enthalten. Von Vorteil sind komplette Angaben mit Mobiltelefonnummer und E-Mail-Adresse.
Eine Mindestmietdauer von 24 Monaten ist erwünscht.
Wir bitten um Verständnis, dass wir nur E-Mail-Anfragen bearbeiten können, die Angaben zu Namen, Anschrift und Telefonnummer enthalten. Von Vorteil sind komplette Angaben mit Mobiltelefonnummer und E-Mail-Adresse.
Eine Mindestmietdauer von 24 Monaten ist erwünscht.
Energieausweisangaben
- Enerigeausweistyp Bedarfsausweis
- Energiekennwert 35.6 KWh(m²*a)
- Energieeffizienzklasse A
- Heizungsart Holz-Pelletheizung
- Befeuerung / Energieträger Pellet







