Eckdaten
- Art Maisonettewohnung
- Lage 25436 Uetersen
- Miete zzgl. NK 1.740,00 €
- Wohnfläche 109 m²
- Zimmer 4
- Baujahr 2024
- Heizungsart Wärmepumpe
- Stellplatztyp Carport
- Bezugstermin nach Vereinbarung
- Ausstattung des Bades Badewanne, Dusche, Fenster
- Zustand Erstbezug
- Immobilien-ID 7416
Immobilie
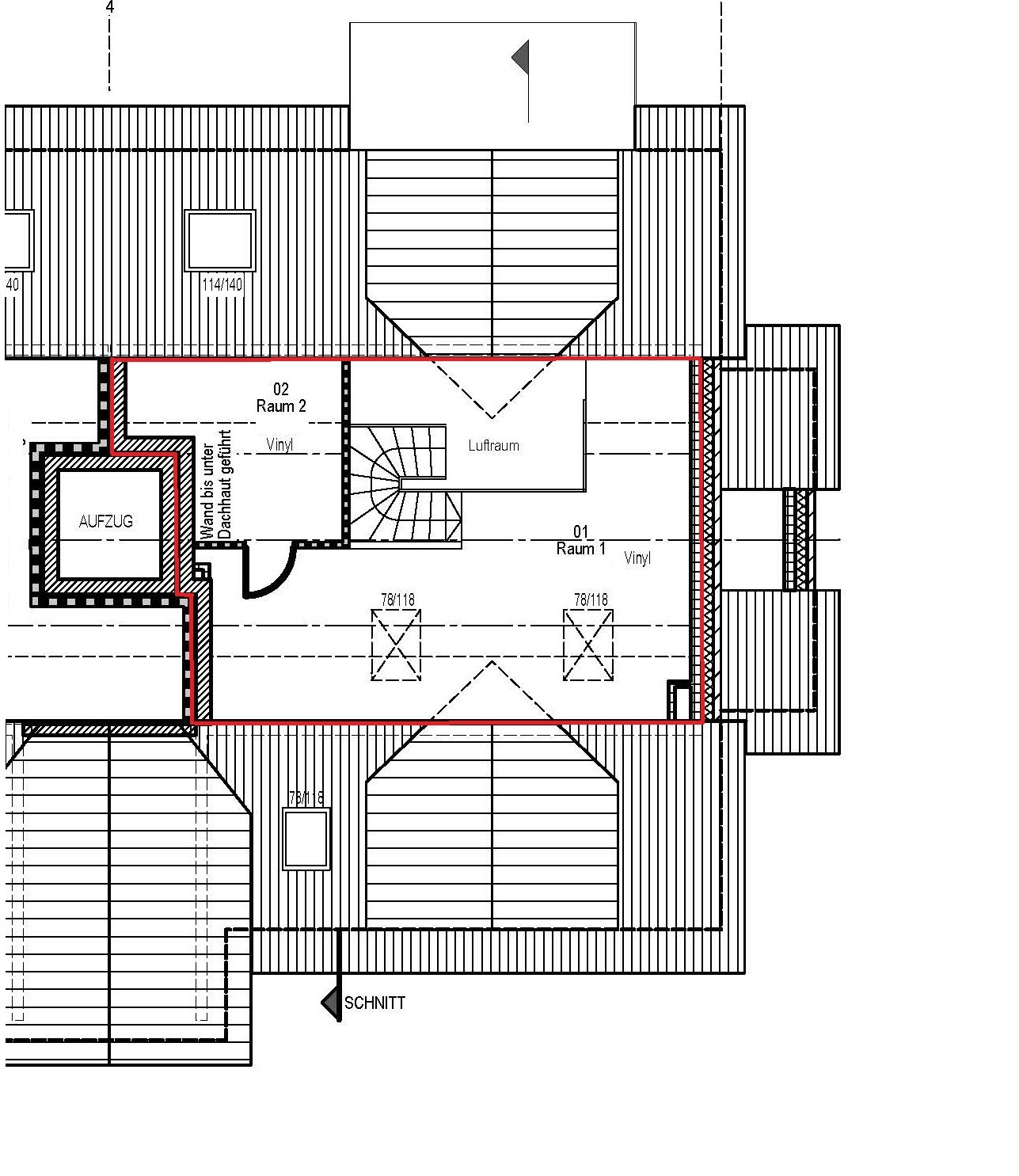
Diese exklusive 3-Zimmer-Neubauwohnung befindet sich im Dachgeschoss mit ausgebautem Spitzboden in einem in Kürze fertiggestellten Gebäude und bietet höchsten Wohnkomfort im Erstbezug. Die großzügige Wohnfläche von ca. 109 m² erstreckt sich über zwei Schlafzimmer sowie einer großzügigen Wohnküche. Besonders hervorzuheben ist die Galerie mit Gäste-WC im Spitzboden (über eine massive Treppe aus dem Wohnbereich erreichbar). Der gelungene Grundriss und die hochwertige Ausstattung machen diese Wohnung besonders attraktiv.
Raumaufteilung:
Die Wohnung besteht aus einem Flur, zwei Schlafzimmern, einer einladenden Wohnküche, einem modernen Vollbad sowie einer exklusiven Galerie (hervorragend als Büro nutzbar) mit angrenzendem Gäste-WC. Die EBK ist mit hochwertigen Elektrogeräten ausgestattet. Die Wohnküche bietet nicht nur hervorragende Gestaltungsmöglichkeiten, sondern auch den direkten Zugang zum sonnigen Balkon. Dieser lädt zu entspannten Stunden im Freien ein. Des Weiteren steht Ihnen ein praktischer Abstellraum innerhalb der Wohnung zur Verfügung. Ein großzügiger Kellerraum steht Ihnen im Keller der Immobilie ebenfalls zur Verfügung.
Der Immobilie ist ein Carport-Stellplatz zugeordnet.
Raumaufteilung:
Die Wohnung besteht aus einem Flur, zwei Schlafzimmern, einer einladenden Wohnküche, einem modernen Vollbad sowie einer exklusiven Galerie (hervorragend als Büro nutzbar) mit angrenzendem Gäste-WC. Die EBK ist mit hochwertigen Elektrogeräten ausgestattet. Die Wohnküche bietet nicht nur hervorragende Gestaltungsmöglichkeiten, sondern auch den direkten Zugang zum sonnigen Balkon. Dieser lädt zu entspannten Stunden im Freien ein. Des Weiteren steht Ihnen ein praktischer Abstellraum innerhalb der Wohnung zur Verfügung. Ein großzügiger Kellerraum steht Ihnen im Keller der Immobilie ebenfalls zur Verfügung.
Der Immobilie ist ein Carport-Stellplatz zugeordnet.
Lage
Die Immobilie befindet sich in zentraler Wohnlage von Uetersen. Die Umgebung ist geprägt von älteren Siedlungshäusern sowie einigen kleinen Mehrfamilienhäusern. Sämtliche Schulen und Kindergärten sind binnen weniger Fahrminuten zu erreichen. Einkaufsmöglichkeiten für den täglichen Bedarf sind in der Uetersener Innenstadt (ca. 10 Gehminuten) anzutreffen.
Eine gute Anbindung nach Elmshorn, Uetersen und Pinneberg ist durch eine Bushaltestelle in wenigen Gehminuten gewährleistet. Der Tornescher Bahnhof ist in 5 Autominuten zu erreichen. Die BAB 23 erreichen Sie in 10-15 Autominuten über die Zufahrt in Tornesch.
Eine gute Anbindung nach Elmshorn, Uetersen und Pinneberg ist durch eine Bushaltestelle in wenigen Gehminuten gewährleistet. Der Tornescher Bahnhof ist in 5 Autominuten zu erreichen. Die BAB 23 erreichen Sie in 10-15 Autominuten über die Zufahrt in Tornesch.
Ausstattung
Aufzug: Ein Aufzug erleichtert den Zugang zur Wohnung und macht sie besonders komfortabel.
Fußbodenheizung: Genießen Sie angenehme Wärme in allen Räumen dank der Fußbodenheizung.
Wohnraumbelüftung: Die Wohnung verfügt über eine moderne Wohnraumbelüftung mit Wärmerückgewinnung, die für ein angenehmes Raumklima sorgt.
Elektrische Außenrollläden: Es sind elektrische Außenrollläden angebracht, die sowohl den Sonnenschutz als auch die Privatsphäre gewährleisten.
Glasfaseranschluss: Die Wohnung ist mit einem Glasfaseranschluss ausgestattet, um eine schnelle und zuverlässige Internetverbindung zu gewährleisten.
Bodenbeläge: Die Wohnräume sind bis auf die Badezimmer mit hochwertigem Vinyl ausgelegt, was nicht nur pflegeleicht, sondern auch ästhetisch ansprechend ist.
Badezimmer: Die Badezimmer sind modern gefliest und verfügen über eine bodengleiche Dusche sowie einer Badewanne, die ein zeitgemäßes und komfortables Baderlebnis ermöglichen.
Fußbodenheizung: Genießen Sie angenehme Wärme in allen Räumen dank der Fußbodenheizung.
Wohnraumbelüftung: Die Wohnung verfügt über eine moderne Wohnraumbelüftung mit Wärmerückgewinnung, die für ein angenehmes Raumklima sorgt.
Elektrische Außenrollläden: Es sind elektrische Außenrollläden angebracht, die sowohl den Sonnenschutz als auch die Privatsphäre gewährleisten.
Glasfaseranschluss: Die Wohnung ist mit einem Glasfaseranschluss ausgestattet, um eine schnelle und zuverlässige Internetverbindung zu gewährleisten.
Bodenbeläge: Die Wohnräume sind bis auf die Badezimmer mit hochwertigem Vinyl ausgelegt, was nicht nur pflegeleicht, sondern auch ästhetisch ansprechend ist.
Badezimmer: Die Badezimmer sind modern gefliest und verfügen über eine bodengleiche Dusche sowie einer Badewanne, die ein zeitgemäßes und komfortables Baderlebnis ermöglichen.
Sonstiges
Wir bitten um Verständnis, dass wir nur E-Mail-Anfragen bearbeiten können, die Angaben zu Namen, Anschrift und Telefonnummer enthalten. Von Vorteil sind komplette Angaben mit Mobiltelefonnummer und E-Mail-Adresse.
Eine Mindestmietdauer von 24 Monaten ist erwünscht.
Bitte beachten Sie, dass die postalische Adresse Kuhlenstraße 14a, 25436 Uetersen lautet. Nicht alle Karten haben bereits die Adresse implementiert.
Wir weisen ausdrücklich darauf hin, dass die von uns weitergegebenen Objektinformationen, Unterlagen, Pläne etc. vom Verkäufer bzw. Vermieter stammen. Eine Haftung für die Richtigkeit oder Vollständigkeit der Angaben übernehmen wir - trotz selbstverständlicher Überprüfung nach bestem Wissen und Gewissen auf Fehler – daher nicht. Es obliegt unseren Kunden, die darin enthaltenen Objektinformationen und Angaben auf ihre Richtigkeit hin zu überprüfen.
Alle Immobilienangebote sind freibleibend und vorbehaltlich Irrtümer, Zwischenverkauf- und Vermietung oder sonstiger Zwischenverwertung.
Eine Mindestmietdauer von 24 Monaten ist erwünscht.
Bitte beachten Sie, dass die postalische Adresse Kuhlenstraße 14a, 25436 Uetersen lautet. Nicht alle Karten haben bereits die Adresse implementiert.
Wir weisen ausdrücklich darauf hin, dass die von uns weitergegebenen Objektinformationen, Unterlagen, Pläne etc. vom Verkäufer bzw. Vermieter stammen. Eine Haftung für die Richtigkeit oder Vollständigkeit der Angaben übernehmen wir - trotz selbstverständlicher Überprüfung nach bestem Wissen und Gewissen auf Fehler – daher nicht. Es obliegt unseren Kunden, die darin enthaltenen Objektinformationen und Angaben auf ihre Richtigkeit hin zu überprüfen.
Alle Immobilienangebote sind freibleibend und vorbehaltlich Irrtümer, Zwischenverkauf- und Vermietung oder sonstiger Zwischenverwertung.
Energieausweisangaben
- Enerigeausweistyp Bedarfsausweis
- Energiekennwert 14.9 KWh(m²*a)
- Energieeffizienzklasse A+
- Energieausweis erstellt am 21.11.2024
- Energieausweis gültig bis 20.11.2034
- Heizungsart Wärmepumpe
- Befeuerung / Energieträger Wärmepumpe














