Eckdaten
- Art Büro und Lagergebäude
- Lage 25358 Horst
- Miete zzgl. NK 1.965,00 €
- Gewerbefläche 280.52 m²
- Gesamtfläche 280.52 m²
- Baujahr 2025
- Stellplatztyp Aussenstellplatz
- Garagenanzahl 1
- Zustand Erstbezug
- Immobilien-ID 7329
- Provision € 4.676.70 inkl. MwSt.
Immobilie
Im aufstrebenden Gewerbegebiet G6 in Horst entsteht aktuell eine moderne Gewerbehalle, die sich ideal für vielfältige Nutzungsmöglichkeiten eignet – ob als Lager, Werkstatt, Produktionsstätte oder für logistische Zwecke.
Objektdetails:
• Adresse (zur Orientierung): An der Heide, 25358 Horst
Tatsächliche Adresse: Lise-Meitner-Straße 12, 25358 Horst
(Hinweis: Die genaue Adresse ist aktuell noch nicht bei Google Maps oder Apple Karten verzeichnet – die angegebene Adresse dient zur Orientierung.)
Flächenaufteilung:
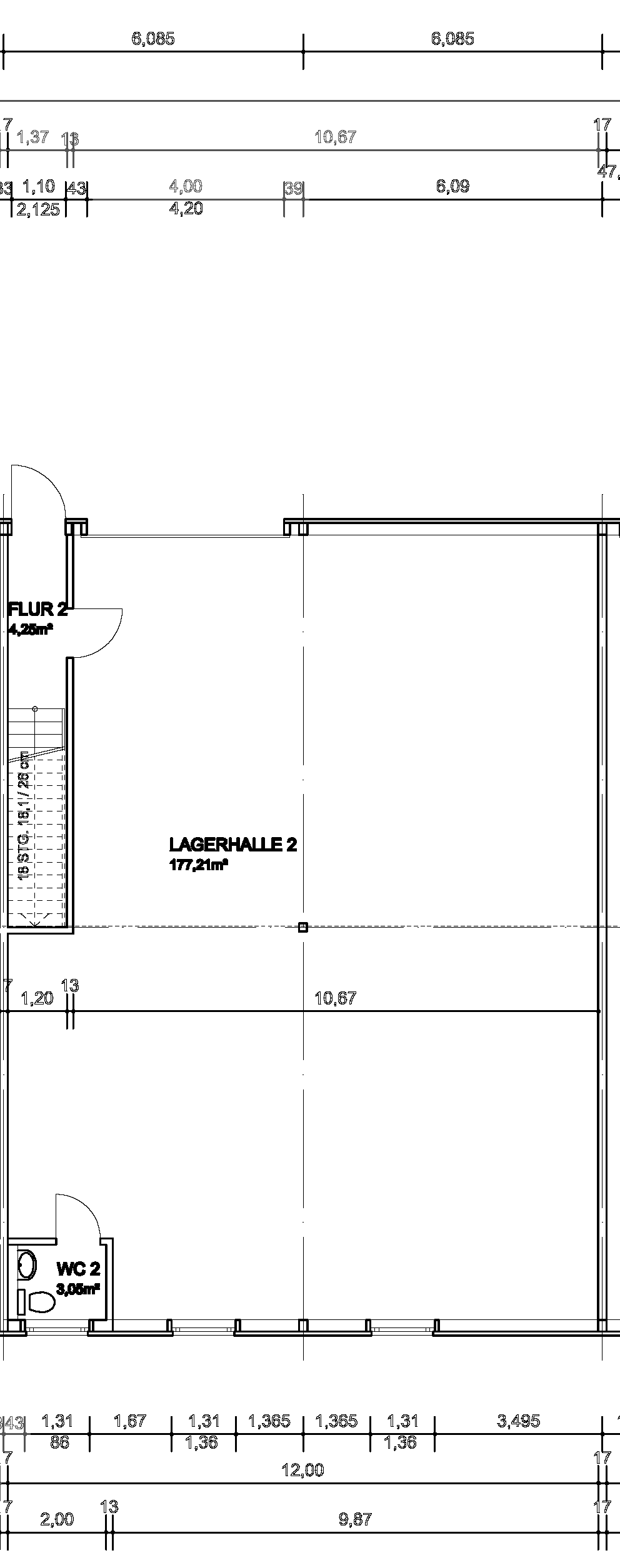
• Erdgeschoss: ca. 190 m²
• Obergeschoss: ca. 48 m², erreichbar über eine massive Holztreppe
Diese Immobilie bietet Ihnen optimale Voraussetzungen für Ihr Gewerbevorhaben – in einem modernen Umfeld mit flexiblen Nutzungsmöglichkeiten und neuester technischer Ausstattung.
Kontaktieren Sie uns jetzt für weitere Informationen oder zur Vereinbarung eines Besichtigungstermins!
Objektdetails:
• Adresse (zur Orientierung): An der Heide, 25358 Horst
Tatsächliche Adresse: Lise-Meitner-Straße 12, 25358 Horst
(Hinweis: Die genaue Adresse ist aktuell noch nicht bei Google Maps oder Apple Karten verzeichnet – die angegebene Adresse dient zur Orientierung.)
Flächenaufteilung:
• Erdgeschoss: ca. 190 m²
• Obergeschoss: ca. 48 m², erreichbar über eine massive Holztreppe
Diese Immobilie bietet Ihnen optimale Voraussetzungen für Ihr Gewerbevorhaben – in einem modernen Umfeld mit flexiblen Nutzungsmöglichkeiten und neuester technischer Ausstattung.
Kontaktieren Sie uns jetzt für weitere Informationen oder zur Vereinbarung eines Besichtigungstermins!
Lage
Die angebotene Lagerhalle befindet sich im neu erschlossenen Gewerbegebiet G6 in 25358 Horst, Schleswig-Holstein. Die Lage zeichnet sich durch ihre hervorragende Verkehrsanbindung aus: In unmittelbarer Nähe verläuft die Autobahn A23, über die sowohl Hamburg als auch Heide in kurzer Zeit erreichbar sind. Die Anschlussstelle Horst/Elmshorn ist nur wenige Fahrminuten entfernt und gewährleistet einen schnellen Zugang zum überregionalen Straßennetz.
Auch die Bundesstraße B5 ist gut erreichbar und ergänzt die optimale Verkehrsanbindung für den Güter- und Lieferverkehr. Der Standort eignet sich ideal für Unternehmen mit logistischen Anforderungen oder hohem Warenumschlag.
Das Gewerbegebiet G6 ist infrastrukturell gut erschlossen und bietet ein gepflegtes, gewerblich geprägtes Umfeld mit weiteren ansässigen Unternehmen unterschiedlicher Branchen. Parkmöglichkeiten stehen in ausreichender Zahl zur Verfügung.
Diese Lage vereint eine strategisch günstige Position mit flexibler Nutzung – perfekt für Lagerung, Logistik oder Produktion.
Auch die Bundesstraße B5 ist gut erreichbar und ergänzt die optimale Verkehrsanbindung für den Güter- und Lieferverkehr. Der Standort eignet sich ideal für Unternehmen mit logistischen Anforderungen oder hohem Warenumschlag.
Das Gewerbegebiet G6 ist infrastrukturell gut erschlossen und bietet ein gepflegtes, gewerblich geprägtes Umfeld mit weiteren ansässigen Unternehmen unterschiedlicher Branchen. Parkmöglichkeiten stehen in ausreichender Zahl zur Verfügung.
Diese Lage vereint eine strategisch günstige Position mit flexibler Nutzung – perfekt für Lagerung, Logistik oder Produktion.
Ausstattung
• Großes, Rolltor mit Kettenantrieb (4 m x 4,20 m)
• Separater Eingang mit Brandschutzeingangstür
• Fenster im Obergeschoss sorgen für Tageslicht
• WC mit Handwaschbecken
• Starkstromanschlüsse (2 x 16 A)
• Wasseranschlüsse vorhanden
• Glasfaseranschluss für schnelle Internetverbindung
• Elektrisches Einfahrtstor für komfortablen Zugang
• Massive Holztreppe im Innenbereich
Besonderheiten:
• Die Halle ist vielseitig nutzbar und eignet sich für zahlreiche Branchen.
• Der Grundriss kann individuell an Ihre Anforderungen angepasst werden.
• Weitere Lagerhallen unterschiedlicher Größen stehen zur Verfügung.
• Separater Eingang mit Brandschutzeingangstür
• Fenster im Obergeschoss sorgen für Tageslicht
• WC mit Handwaschbecken
• Starkstromanschlüsse (2 x 16 A)
• Wasseranschlüsse vorhanden
• Glasfaseranschluss für schnelle Internetverbindung
• Elektrisches Einfahrtstor für komfortablen Zugang
• Massive Holztreppe im Innenbereich
Besonderheiten:
• Die Halle ist vielseitig nutzbar und eignet sich für zahlreiche Branchen.
• Der Grundriss kann individuell an Ihre Anforderungen angepasst werden.
• Weitere Lagerhallen unterschiedlicher Größen stehen zur Verfügung.
Sonstiges
Eine Mindestmietdauer von 24 Monaten ist erwünscht.
Wir bitten um Verständnis, dass wir nur E-Mail-Anfragen bearbeiten können, die Angaben zu Namen, Anschrift und Telefonnummer enthalten. Von Vorteil sind komplette Angaben mit Mobiltelefonnummer und E-Mail-Adresse.
Wir bitten um Verständnis, dass wir nur E-Mail-Anfragen bearbeiten können, die Angaben zu Namen, Anschrift und Telefonnummer enthalten. Von Vorteil sind komplette Angaben mit Mobiltelefonnummer und E-Mail-Adresse.








