Eckdaten
- Art Etagenwohnung
- Lage 25436 Uetersen
- Kaufpreis 420.000,00 €
- Wohnfläche 92 m²
- Zimmer 3
- Baujahr 2024
- Heizungsart Holz-Pelletheizung
- Stellplatztyp Aussenstellplatz
- Garagenanzahl 1
- Vermietet Ja
- Bezugstermin nach Vereinbarung
- Ausstattung des Bades Dusche, Fenster
- Zustand Neuwertig
- Immobilien-ID 7399
- Provision 3% exkl. MwSt.
Immobilie
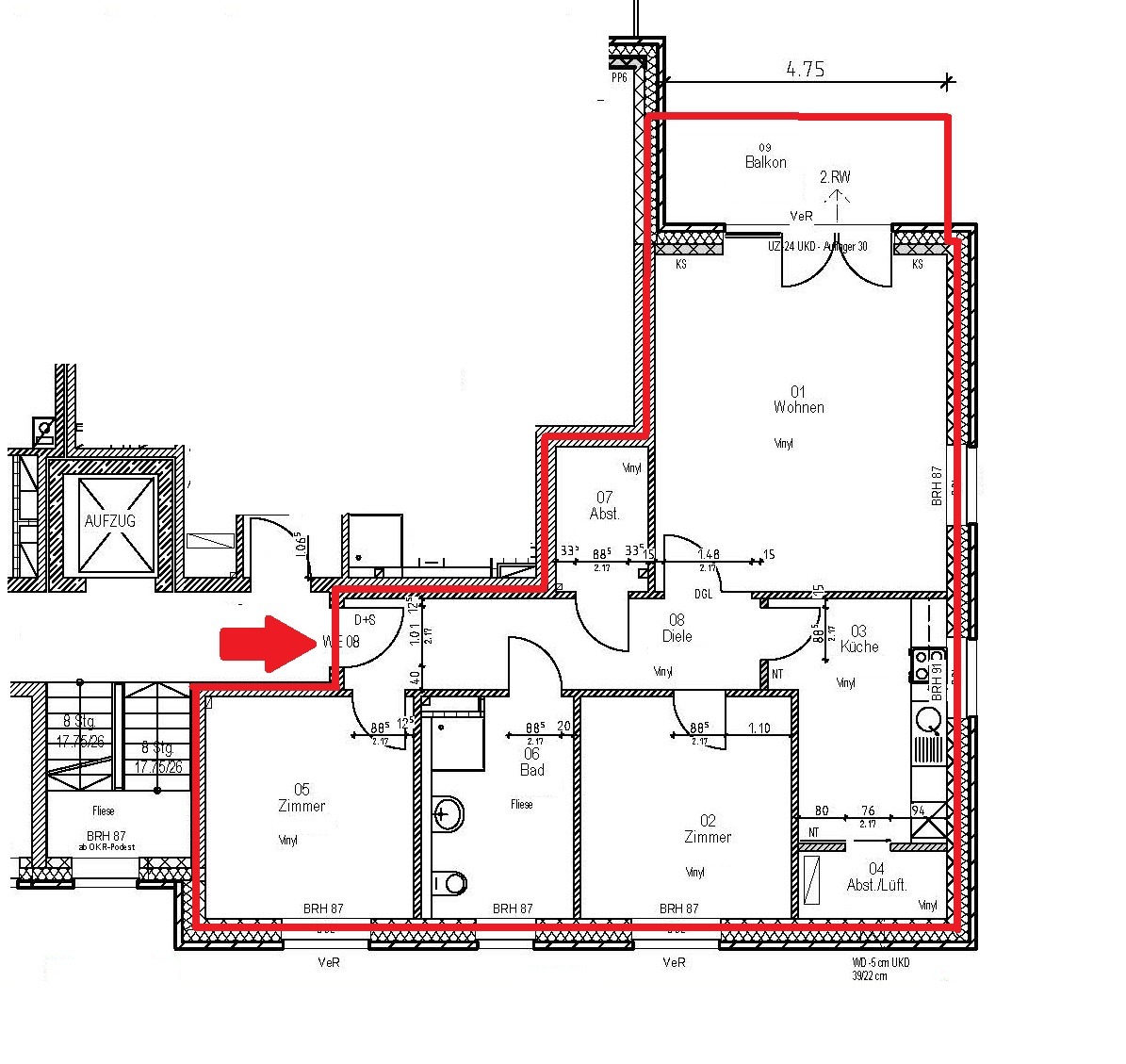
Diese exklusive 3-Zimmer-Neubau-Obergeschosswohnung befindet sich in einem vor Kurzem (2024) fertiggestellten Gebäude und bietet höchsten Wohnkomfort. Die großzügige Wohnfläche von ca. 92 m² erstreckt sich über ein Schlafzimmer, dem Duschbad, Küche sowie ein geräumiges Wohnzimmer mit Ausgang auf den sonnigen Balkon. Der gelungene Grundriss und die hochwertige Ausstattung machen diese Wohnung besonders attraktiv.
Raumaufteilung:
Die Wohnung besteht aus einem Flur, einem Schlafzimmer, einer einladenden Küche, einem Duschbad sowie einem geräumigen Wohnzimmer. Die EBK ist mit hochwertigen Elektrogeräten ausgestattet. Das Wohnzimmer bietet nicht nur hervorragende Gestaltungsmöglichkeiten, sondern auch den direkten Zugang zum sonnigen Balkon. Dieser lädt zu entspannten Stunden im Freien ein. Des Weiteren steht Ihnen ein praktischer Abstellraum/HWR innerhalb der Wohnung zur Verfügung. Ein großzügiger Kellerraum steht Ihnen im Keller der Immobilie ebenfalls zur Verfügung.
Der Immobilie ist ein PKW-Stellplatz zugeordnet und im Kaufpreis inbegriffen. Die Wohnung wird vermietet übergeben. Die jährliche Nettokaltmiete beträgt € 14.904,--
Die Beheizung der Immobilie erfolgt über eine moderne Pelletheizung (Holzpellets). Das Wohngeld beträgt € 382,00.
Insgesamt präsentiert sich diese Neubauwohnung als perfektes zuhause für anspruchsvolle Selbstnutzer bzw. Kapitalanleger, die modernes Wohnen in einer komfortablen Umgebung schätzen. Wir laden Sie herzlich dazu ein, diese Wohnung persönlich zu besichtigen und sich von ihren Vorzügen zu überzeugen. Bei Interesse stehen wir Ihnen gerne für weitere Informationen und Terminvereinbarungen zur Verfügung.
Raumaufteilung:
Die Wohnung besteht aus einem Flur, einem Schlafzimmer, einer einladenden Küche, einem Duschbad sowie einem geräumigen Wohnzimmer. Die EBK ist mit hochwertigen Elektrogeräten ausgestattet. Das Wohnzimmer bietet nicht nur hervorragende Gestaltungsmöglichkeiten, sondern auch den direkten Zugang zum sonnigen Balkon. Dieser lädt zu entspannten Stunden im Freien ein. Des Weiteren steht Ihnen ein praktischer Abstellraum/HWR innerhalb der Wohnung zur Verfügung. Ein großzügiger Kellerraum steht Ihnen im Keller der Immobilie ebenfalls zur Verfügung.
Der Immobilie ist ein PKW-Stellplatz zugeordnet und im Kaufpreis inbegriffen. Die Wohnung wird vermietet übergeben. Die jährliche Nettokaltmiete beträgt € 14.904,--
Die Beheizung der Immobilie erfolgt über eine moderne Pelletheizung (Holzpellets). Das Wohngeld beträgt € 382,00.
Insgesamt präsentiert sich diese Neubauwohnung als perfektes zuhause für anspruchsvolle Selbstnutzer bzw. Kapitalanleger, die modernes Wohnen in einer komfortablen Umgebung schätzen. Wir laden Sie herzlich dazu ein, diese Wohnung persönlich zu besichtigen und sich von ihren Vorzügen zu überzeugen. Bei Interesse stehen wir Ihnen gerne für weitere Informationen und Terminvereinbarungen zur Verfügung.
Lage
Die Immobilie befindet sich in zentraler Wohnlage von Uetersen. Die Umgebung ist geprägt von älteren Siedlungshäusern sowie einigen neuen Mehrfamilienhäusern.
Sämtliche Schulen und Kindergärten sind binnen weniger Fahrminuten zu erreichen. Einkaufsmöglichkeiten für den täglichen Bedarf sind in der Uetersener Innenstadt (ca. 10 Gehminuten) anzutreffen. Eine Bushaltestelle ist in unmittelbarer Umgebung vorhanden.
Eine gute Anbindung nach Elmshorn, Uetersen und Pinneberg ist durch eine Bushaltestelle in wenigen Gehminuten gewährleistet. Der Tornescher Bahnhof ist in 10 Autominuten zu erreichen. Die BAB 23 erreichen Sie in 15 Autominuten über die Zufahrt in Tornesch.
Sämtliche Schulen und Kindergärten sind binnen weniger Fahrminuten zu erreichen. Einkaufsmöglichkeiten für den täglichen Bedarf sind in der Uetersener Innenstadt (ca. 10 Gehminuten) anzutreffen. Eine Bushaltestelle ist in unmittelbarer Umgebung vorhanden.
Eine gute Anbindung nach Elmshorn, Uetersen und Pinneberg ist durch eine Bushaltestelle in wenigen Gehminuten gewährleistet. Der Tornescher Bahnhof ist in 10 Autominuten zu erreichen. Die BAB 23 erreichen Sie in 15 Autominuten über die Zufahrt in Tornesch.
Ausstattung
Aufzug: Ein Aufzug erleichtert den Zugang zur Wohnung und macht sie besonders komfortabel.
Fußbodenheizung: Genießen Sie angenehme Wärme in allen Räumen dank der Fußbodenheizung.
Wohnraumbelüftung: Die Wohnung verfügt über eine moderne Wohnraumbelüftung, die für ein angenehmes Raumklima sorgt.
Elektrische Außenrollläden: Auf der Südseite sind elektrische Außenrollläden angebracht, die sowohl den Sonnenschutz als auch die Privatsphäre gewährleisten.
Bodenbeläge: Die Wohnräume sind bis auf die Badezimmer mit hochwertigem Vinyl ausgelegt, was nicht nur pflegeleicht, sondern auch ästhetisch ansprechend ist.
Badezimmer: Die Badezimmer sind modern gefliest und verfügen über bodengleiche Duschen, die ein zeitgemäßes und komfortables Baderlebnis ermöglichen.
Rendite: Die Wohnung ist aktuell vermietet. Die jährliche Nettokaltmiete beläuft sich auf € 14.904,--.
Fußbodenheizung: Genießen Sie angenehme Wärme in allen Räumen dank der Fußbodenheizung.
Wohnraumbelüftung: Die Wohnung verfügt über eine moderne Wohnraumbelüftung, die für ein angenehmes Raumklima sorgt.
Elektrische Außenrollläden: Auf der Südseite sind elektrische Außenrollläden angebracht, die sowohl den Sonnenschutz als auch die Privatsphäre gewährleisten.
Bodenbeläge: Die Wohnräume sind bis auf die Badezimmer mit hochwertigem Vinyl ausgelegt, was nicht nur pflegeleicht, sondern auch ästhetisch ansprechend ist.
Badezimmer: Die Badezimmer sind modern gefliest und verfügen über bodengleiche Duschen, die ein zeitgemäßes und komfortables Baderlebnis ermöglichen.
Rendite: Die Wohnung ist aktuell vermietet. Die jährliche Nettokaltmiete beläuft sich auf € 14.904,--.
Sonstiges
Bei den Digitalbildern handelt es sich um die baugleiche Wohneinheit aus dem Erdgeschoss. Aktuelle Innenaufnahmen folgen in Kürze.
Wir bitten um Verständnis, dass wir nur E-Mail-Anfragen bearbeiten können, die Angaben zu Namen, Anschrift und Telefonnummer enthalten. Von Vorteil sind komplette Angaben mit Mobiltelefonnummer und E-Mail-Adresse.
Wir weisen ausdrücklich darauf hin, dass die von uns weitergegebenen Objektinformationen, Unterlagen, Pläne etc. vom Verkäufer stammen. Eine Haftung für die Richtigkeit oder Vollständigkeit der Angaben übernehmen wir - trotz selbstverständlicher Überprüfung nach bestem Wissen und Gewissen auf Fehler – daher nicht. Es obliegt unseren Kunden, die darin enthaltenen Objektinformationen und Angaben auf ihre Richtigkeit hin zu überprüfen.
Alle Immobilienangebote sind freibleibend und vorbehaltlich Irrtümer, Zwischenverkauf- und Vermietung oder sonstiger Zwischenverwertung.
Wir bitten um Verständnis, dass wir nur E-Mail-Anfragen bearbeiten können, die Angaben zu Namen, Anschrift und Telefonnummer enthalten. Von Vorteil sind komplette Angaben mit Mobiltelefonnummer und E-Mail-Adresse.
Wir weisen ausdrücklich darauf hin, dass die von uns weitergegebenen Objektinformationen, Unterlagen, Pläne etc. vom Verkäufer stammen. Eine Haftung für die Richtigkeit oder Vollständigkeit der Angaben übernehmen wir - trotz selbstverständlicher Überprüfung nach bestem Wissen und Gewissen auf Fehler – daher nicht. Es obliegt unseren Kunden, die darin enthaltenen Objektinformationen und Angaben auf ihre Richtigkeit hin zu überprüfen.
Alle Immobilienangebote sind freibleibend und vorbehaltlich Irrtümer, Zwischenverkauf- und Vermietung oder sonstiger Zwischenverwertung.
Energieausweisangaben
- Enerigeausweistyp Bedarfsausweis
- Energiekennwert 35.6 KWh(m²*a)
- Energieeffizienzklasse A
- Energieausweis erstellt am 09.01.2024
- Energieausweis gültig bis 08.01.2034
- Heizungsart Holz-Pelletheizung
- Befeuerung / Energieträger Pellet











