Eckdaten
- Art Erdgeschosswohnung
- Lage 22880 Wedel
- Kaufpreis 399.000,00 €
- Wohnfläche 98.75 m²
- Zimmer 3
- Baujahr 1993
- Heizungsart Gas-Heizung
- Stellplatztyp Tiefgarage
- Vermietet Nein
- Bezugstermin nach Vereinbarung
- Zustand Gepflegt
- Immobilien-ID 7403
- Provision 3% inkl. MwSt.
Immobilie
In einer der begehrtesten Wohnlagen Wedels, nur wenige Schritte von der Elbe entfernt, befindet sich diese attraktive Erdgeschosswohnung.
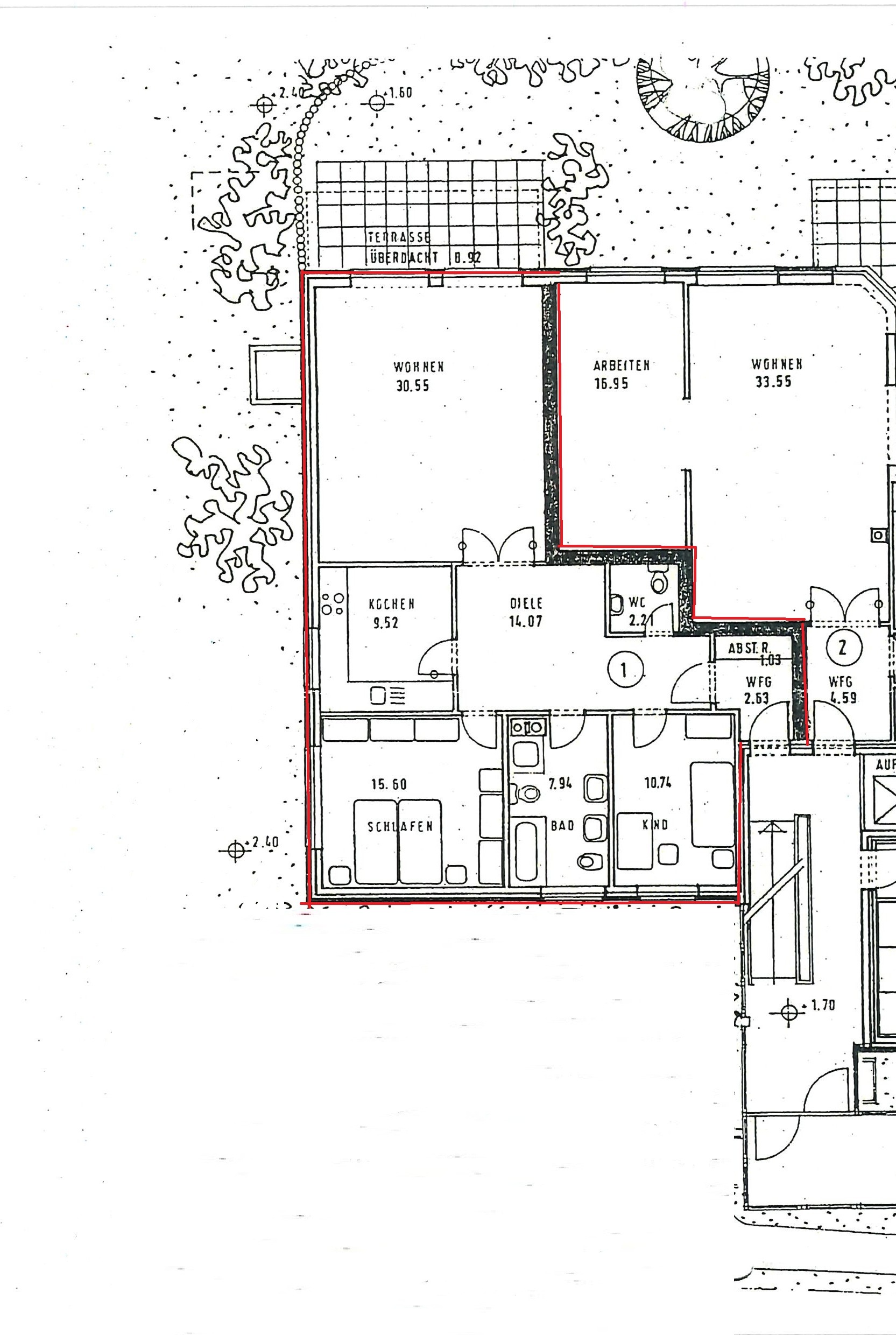
Mit einer Wohnfläche von rund 98,75 m² verbindet sie großzügiges Wohnen mit hochwertiger Ausstattung und einem durchdachten Grundriss – ideal für anspruchsvolle Käufer, die Wert auf Komfort und Lage legen.
Die 1993 errichtete Wohnanlage präsentiert sich äußerst gepflegt und besteht aus insgesamt nur neun Einheiten, was ein ruhiges und angenehmes Wohnumfeld garantiert. Zur Wohnung gehört ein eigener Kellerraum. Zwei Tiefgaragenstellplätze stehen optional zum Erwerb zur Verfügung und sind nicht im Kaufpreis enthalten. Der Kaufpreis beträgt jeweils € 25.000, – pro Tiefgaragenstellplatz.
Im Inneren überzeugt die Wohnung mit einer gelungenen Raumaufteilung: Das helle Wohnzimmer öffnet sich zur sonnigen Terrasse, die mit elektrischer Sonnenmarkise zum Verweilen im Freien einlädt. Die separate Markeneinbauküche erfüllt höchste Ansprüche an Funktionalität und Design.
Zwei solide Bäder – ein Wannenbad mit Fenster sowie ein Gäste-WC mit Dusche – bieten zusätzlichen Komfort. Für ein rundum angenehmes Raumklima sorgt die Fußbodenheizung, die in der gesamten Wohnung verlegt ist.
Praktische Details wie elektrische Außenrollläden und hochwertige Fliegengitter an sämtlichen Fenstern unterstreichen die hohe Qualität dieser Immobilie.
Der Anschluss für die Waschmaschine befindet sich im separaten Waschkeller (mit eigenem Strom- und Wasserzähler). Außerdem besteht die Möglichkeit, die Waschmaschine im Wannenbad unterzubringen.
Mit einer Wohnfläche von rund 98,75 m² verbindet sie großzügiges Wohnen mit hochwertiger Ausstattung und einem durchdachten Grundriss – ideal für anspruchsvolle Käufer, die Wert auf Komfort und Lage legen.
Die 1993 errichtete Wohnanlage präsentiert sich äußerst gepflegt und besteht aus insgesamt nur neun Einheiten, was ein ruhiges und angenehmes Wohnumfeld garantiert. Zur Wohnung gehört ein eigener Kellerraum. Zwei Tiefgaragenstellplätze stehen optional zum Erwerb zur Verfügung und sind nicht im Kaufpreis enthalten. Der Kaufpreis beträgt jeweils € 25.000, – pro Tiefgaragenstellplatz.
Im Inneren überzeugt die Wohnung mit einer gelungenen Raumaufteilung: Das helle Wohnzimmer öffnet sich zur sonnigen Terrasse, die mit elektrischer Sonnenmarkise zum Verweilen im Freien einlädt. Die separate Markeneinbauküche erfüllt höchste Ansprüche an Funktionalität und Design.
Zwei solide Bäder – ein Wannenbad mit Fenster sowie ein Gäste-WC mit Dusche – bieten zusätzlichen Komfort. Für ein rundum angenehmes Raumklima sorgt die Fußbodenheizung, die in der gesamten Wohnung verlegt ist.
Praktische Details wie elektrische Außenrollläden und hochwertige Fliegengitter an sämtlichen Fenstern unterstreichen die hohe Qualität dieser Immobilie.
Der Anschluss für die Waschmaschine befindet sich im separaten Waschkeller (mit eigenem Strom- und Wasserzähler). Außerdem besteht die Möglichkeit, die Waschmaschine im Wannenbad unterzubringen.
Lage
Die Wohnung liegt in unmittelbarer Elbnähe in 22880 Wedel, in einer der gefragtesten Wohnlagen der Region. Die Schulauer Straße verbindet die Ruhe einer gewachsenen Wohngegend mit der Nähe zur Natur und den maritimen Vorzügen des Elbufers. Einkaufsmöglichkeiten, Schulen, Kindergärten und Restaurants sind in wenigen Minuten erreichbar. Zudem bietet die gute Verkehrsanbindung schnelle Verbindungen in die Hamburger Innenstadt.
Ausstattung
• Sonnige Terrasse mit elektrischer Markise
• Hochwertige Markeneinbauküche
• Zwei Bäder (Wannenbad mit Fenster + Gäste-Duschbad)
• Fußbodenheizung in der gesamten Wohnung
• Elektrische Rollläden & Fliegengitter an allen Fenstern
• Zwei eigene Tiefgaragenstellplätze können für jeweils € 25.000, -- erworben werden
• Sehr gepflegte Wohnanlage mit nur neun Einheiten
• Hochwertige Markeneinbauküche
• Zwei Bäder (Wannenbad mit Fenster + Gäste-Duschbad)
• Fußbodenheizung in der gesamten Wohnung
• Elektrische Rollläden & Fliegengitter an allen Fenstern
• Zwei eigene Tiefgaragenstellplätze können für jeweils € 25.000, -- erworben werden
• Sehr gepflegte Wohnanlage mit nur neun Einheiten
Sonstiges
Bitte haben Sie Verständnis, dass wir ausschließlich E-Mail-Anfragen berücksichtigen können, die vollständige Angaben zu Namen, Anschrift und Telefonnummer enthalten. Vorteilhaft sind zudem vollständige Kontaktdaten einschließlich Mobilnummer und E-Mail-Adresse.
Haftungsausschluss
Die von uns weitergegebenen Objektinformationen, Unterlagen, Pläne usw. stammen vom jeweiligen Verkäufer oder Vermieter. Trotz sorgfältiger Prüfung nach bestem Wissen und Gewissen übernehmen wir keine Haftung für deren Richtigkeit oder Vollständigkeit. Es obliegt dem Interessenten, die enthaltenen Angaben eigenständig auf ihre Richtigkeit zu überprüfen.
Verfügbarkeit der Angebote
Alle Immobilienangebote sind freibleibend. Änderungen, Irrtümer, Zwischenverkauf, Zwischenvermietung oder sonstige Zwischenverwertung bleiben ausdrücklich vorbehalten.
Provision
Die Nachweis- bzw. Vermittlungsprovision beträgt für den Käufer 3 % des notariell beurkundeten Kaufpreises einschließlich 19 % MwSt. Sie ist mit Abschluss der notariellen Beurkundung verdient und sofort fällig.
Haftungsausschluss
Die von uns weitergegebenen Objektinformationen, Unterlagen, Pläne usw. stammen vom jeweiligen Verkäufer oder Vermieter. Trotz sorgfältiger Prüfung nach bestem Wissen und Gewissen übernehmen wir keine Haftung für deren Richtigkeit oder Vollständigkeit. Es obliegt dem Interessenten, die enthaltenen Angaben eigenständig auf ihre Richtigkeit zu überprüfen.
Verfügbarkeit der Angebote
Alle Immobilienangebote sind freibleibend. Änderungen, Irrtümer, Zwischenverkauf, Zwischenvermietung oder sonstige Zwischenverwertung bleiben ausdrücklich vorbehalten.
Provision
Die Nachweis- bzw. Vermittlungsprovision beträgt für den Käufer 3 % des notariell beurkundeten Kaufpreises einschließlich 19 % MwSt. Sie ist mit Abschluss der notariellen Beurkundung verdient und sofort fällig.
Energieausweisangaben
- Enerigeausweistyp Verbrauchsausweis
- Energiekennwert 122 KWh(m²*a)
- Energieeffizienzklasse D
- Energieausweis erstellt am 04.08.2025
- Energieausweis gültig bis 03.08.2035
- Heizungsart Gas-Heizung
- Befeuerung / Energieträger Gas



















