Eckdaten
- Art Zweifamilienhaus
- Lage 25436 Uetersen
- Kaufpreis 299.000,00 €
- Wohnfläche 153 m²
- Grundstück 442 m²
- Zimmer 7
- Baujahr 1903
- Heizungsart Gas-Heizung
- Stellplatztyp Aussenstellplatz
- Garagenanzahl 2
- Vermietet Ja
- Bezugstermin nach Vereinbarung
- Zustand Renovierungsbedürftig
- Immobilien-ID 7424
- Provision 3% inkl. MwSt.
Immobilie
Dieses renovierungsbedürftige (Innen) Zweifamilienhaus aus dem Jahr 1903 (Umbau 1957) in Uetersen bietet vielfältige Nutzungsmöglichkeiten. Mit einer Gesamtwohnfläche von ca. 153 m², verteilt auf 7 Schlafräume, eignet sich die Immobilie sowohl als Kapitalanlage als auch für Eigennutzer, die Wohnen und Vermieten miteinander kombinieren möchten.
Die Immobilie verfügt über zwei Wohneinheiten mit klarer Trennung. Die Erdgeschosswohnung wird frei geliefert und kann nach individuellen Vorstellungen renoviert werden. Die Obergeschosswohnung ist aktuell vermietet und bietet durch den separaten Eingang viel Privatsphäre. Die Mieteinnahmen belaufen sich derzeit auf € 8.400,00.
Zusätzliche Nutzflächen im Dachgeschoss und Keller sowie Stellplätze und ein kleiner Garten mit Nebengelass machen dieses Objekt besonders interessant.
Positiv erwähnenswert ist die bereits erfolgte Wärmedämmung der Außenwände sowie die Neueindeckung des Daches.
Aufteilung
Erdgeschoss-Wohnung (ca. 72 m²)
5 Räume inkl. Küche und Vollbad – wird frei geliefert.
Obergeschoss-Wohnung (ca. 73 m²)
6 Räume inkl. Küche und Duschbad – derzeit vermietet, separater Eingang.
Dachgeschoss
Nicht ausgebaut, ca. 57 m² Nutzfläche.
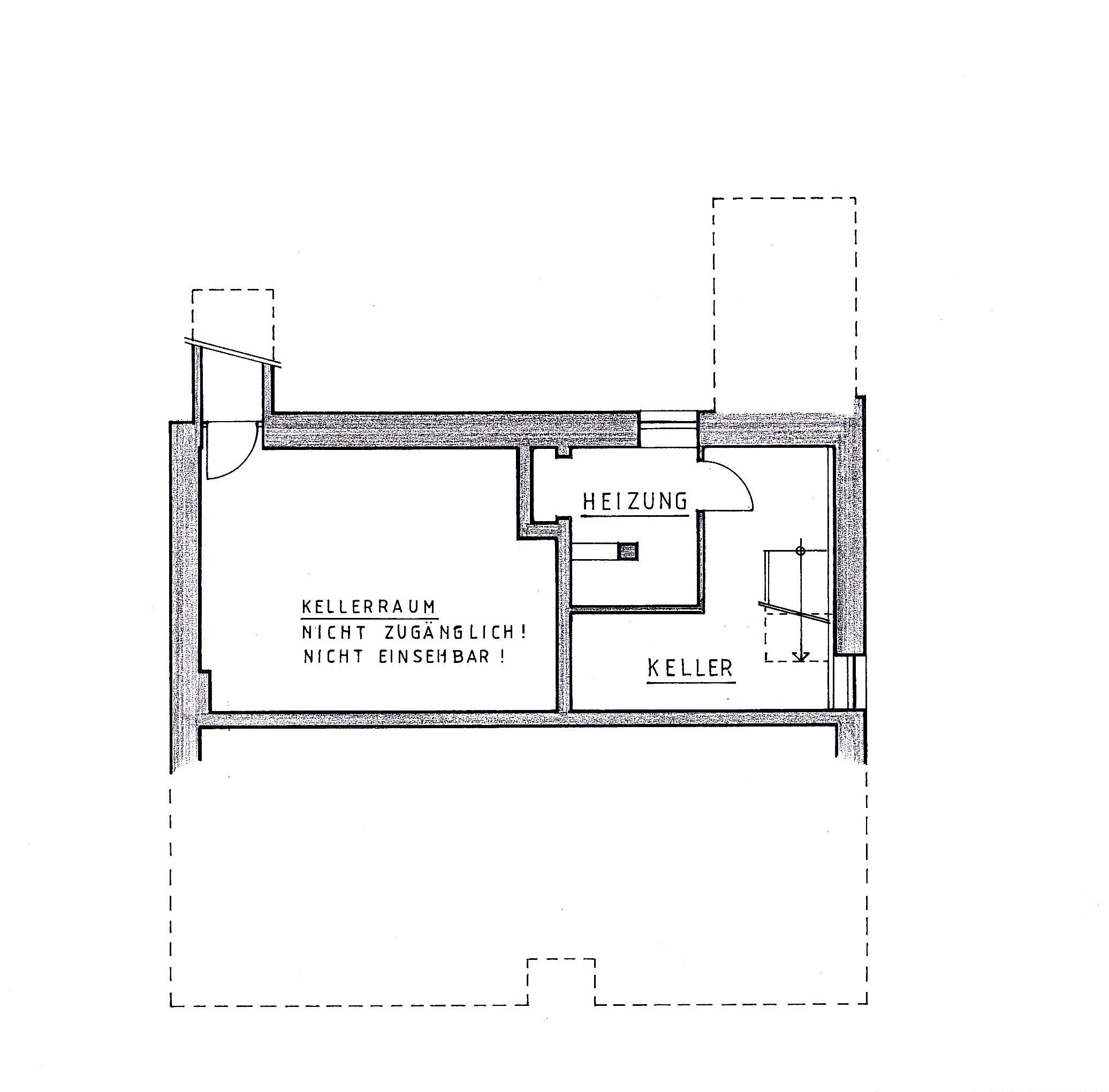
Teilunterkellerung
Ca. 11 m² Staufläche, hier ist auch die Gasheizung untergebracht.
Außenbereich
Hinter dem Haus stehen mehrere Stellplätze zur Verfügung. Ein kleiner Garten mit Nebengelass lädt zur Nutzung als Erholungsfläche oder für Hobbys ein.
Besonderheiten
Renovierungsbedürftig (Innen) – ideal für Handwerker oder kreative Eigennutzer
Zwei separate Wohneinheiten
Mieteinnahmen durch die vermietete Obergeschosswohnung
Gute Nutzungsmöglichkeiten für Familien oder Kapitalanleger
Die Immobilie verfügt über zwei Wohneinheiten mit klarer Trennung. Die Erdgeschosswohnung wird frei geliefert und kann nach individuellen Vorstellungen renoviert werden. Die Obergeschosswohnung ist aktuell vermietet und bietet durch den separaten Eingang viel Privatsphäre. Die Mieteinnahmen belaufen sich derzeit auf € 8.400,00.
Zusätzliche Nutzflächen im Dachgeschoss und Keller sowie Stellplätze und ein kleiner Garten mit Nebengelass machen dieses Objekt besonders interessant.
Positiv erwähnenswert ist die bereits erfolgte Wärmedämmung der Außenwände sowie die Neueindeckung des Daches.
Aufteilung
Erdgeschoss-Wohnung (ca. 72 m²)
5 Räume inkl. Küche und Vollbad – wird frei geliefert.
Obergeschoss-Wohnung (ca. 73 m²)
6 Räume inkl. Küche und Duschbad – derzeit vermietet, separater Eingang.
Dachgeschoss
Nicht ausgebaut, ca. 57 m² Nutzfläche.
Teilunterkellerung
Ca. 11 m² Staufläche, hier ist auch die Gasheizung untergebracht.
Außenbereich
Hinter dem Haus stehen mehrere Stellplätze zur Verfügung. Ein kleiner Garten mit Nebengelass lädt zur Nutzung als Erholungsfläche oder für Hobbys ein.
Besonderheiten
Renovierungsbedürftig (Innen) – ideal für Handwerker oder kreative Eigennutzer
Zwei separate Wohneinheiten
Mieteinnahmen durch die vermietete Obergeschosswohnung
Gute Nutzungsmöglichkeiten für Familien oder Kapitalanleger
Lage
Uetersen bietet eine gewachsene Infrastruktur mit Einkaufsmöglichkeiten, Schulen, Kindergärten und einer guten Anbindung an die Städte Hamburg, Pinneberg und Elmshorn. Die Umgebung ist von Einfamilienhäusern als auch neu erstellen Mehrfamilienhäusern geprägt, Naherholung ist in fußläufiger Entfernung erreichbar – ebenso wie der Klövensteen, die Pinnau und zahlreiche Rad- und Wanderwege
Uetersen liegt im Kreis Pinneberg in Schleswig-Holstein und gehört zur Metropolregion Hamburg. Die Stadt verbindet auf gelungene Weise naturnahes Wohnen mit einer sehr guten städtischen Infrastruktur. Zahlreiche Einkaufsmöglichkeiten, Supermärkte, Bäcker, Cafés und Restaurants befinden sich in der näheren Umgebung. Auch Kindergärten, Schulen aller Bildungswege sowie ärztliche Versorgung sind gut erreichbar.
Die Anbindung an den öffentlichen Nahverkehr ist ausgezeichnet: Mehrere Buslinien verbinden Uetersen mit Pinneberg, Tornesch und Wedel. Der Bahnhof Tornesch ist in wenigen Minuten erreichbar und bietet regelmäßige Zugverbindungen nach Hamburg. Mit dem Auto ist die Hamburger Innenstadt in ca. 35–40 Minuten über die A23 erreichbar.
Besonders hervorzuheben ist die Nähe zur Natur: Die umliegenden Naherholungsgebiete, die Pinnau, das Rosarium in Uetersen sowie das Elbufer bei Wedel laden zu Spaziergängen, Radtouren und Freizeitaktivitäten im Grünen ein.
Uetersen liegt im Kreis Pinneberg in Schleswig-Holstein und gehört zur Metropolregion Hamburg. Die Stadt verbindet auf gelungene Weise naturnahes Wohnen mit einer sehr guten städtischen Infrastruktur. Zahlreiche Einkaufsmöglichkeiten, Supermärkte, Bäcker, Cafés und Restaurants befinden sich in der näheren Umgebung. Auch Kindergärten, Schulen aller Bildungswege sowie ärztliche Versorgung sind gut erreichbar.
Die Anbindung an den öffentlichen Nahverkehr ist ausgezeichnet: Mehrere Buslinien verbinden Uetersen mit Pinneberg, Tornesch und Wedel. Der Bahnhof Tornesch ist in wenigen Minuten erreichbar und bietet regelmäßige Zugverbindungen nach Hamburg. Mit dem Auto ist die Hamburger Innenstadt in ca. 35–40 Minuten über die A23 erreichbar.
Besonders hervorzuheben ist die Nähe zur Natur: Die umliegenden Naherholungsgebiete, die Pinnau, das Rosarium in Uetersen sowie das Elbufer bei Wedel laden zu Spaziergängen, Radtouren und Freizeitaktivitäten im Grünen ein.
Ausstattung
• Ursprungsbaujahr: 1903, Umbau 1957
• Wohnfläche: ca. 153 m² verteilt auf 2 Wohneinheiten
• Grundstück 442 m²
• Als Zweifamilienhaus nutzbar (obere WE ist vermietet - Jahresnettomiete € 8.400,00)
• Gasheizung
• Energetischer Zustand: bereits erfolgte Wärmedämmung der Außenwände sowie Dacheindeckung
• Wohnfläche: ca. 153 m² verteilt auf 2 Wohneinheiten
• Grundstück 442 m²
• Als Zweifamilienhaus nutzbar (obere WE ist vermietet - Jahresnettomiete € 8.400,00)
• Gasheizung
• Energetischer Zustand: bereits erfolgte Wärmedämmung der Außenwände sowie Dacheindeckung
Sonstiges
Wir bitten um Verständnis, dass wir nur E-Mail-Anfragen bearbeiten können, die Angaben zu Namen, Anschrift und Telefonnummer enthalten. Von Vorteil sind komplette Angaben mit Mobiltelefonnummer und E-Mail-Adresse.
Wir weisen ausdrücklich darauf hin, dass die von uns weitergegebenen Objektinformationen, Unterlagen, Pläne etc. vom Verkäufer bzw. Vermieter stammen. Eine Haftung für die Richtigkeit oder Vollständigkeit der Angaben übernehmen wir - trotz selbstverständlicher Überprüfung nach bestem Wissen und Gewissen auf Fehler – daher nicht. Es obliegt unseren Kunden, die darin enthaltenen Objektinformationen und Angaben auf ihre Richtigkeit hin zu überprüfen.
Alle Immobilienangebote sind freibleibend und vorbehaltlich Irrtümer, Zwischenverkauf- und Vermietung oder sonstiger Zwischenverwertung.
Wir weisen ausdrücklich darauf hin, dass die von uns weitergegebenen Objektinformationen, Unterlagen, Pläne etc. vom Verkäufer bzw. Vermieter stammen. Eine Haftung für die Richtigkeit oder Vollständigkeit der Angaben übernehmen wir - trotz selbstverständlicher Überprüfung nach bestem Wissen und Gewissen auf Fehler – daher nicht. Es obliegt unseren Kunden, die darin enthaltenen Objektinformationen und Angaben auf ihre Richtigkeit hin zu überprüfen.
Alle Immobilienangebote sind freibleibend und vorbehaltlich Irrtümer, Zwischenverkauf- und Vermietung oder sonstiger Zwischenverwertung.
Energieausweisangaben
- Enerigeausweistyp Bedarfsausweis
- Energiekennwert 261.5 KWh(m²*a)
- Energieeffizienzklasse H
- Energieausweis erstellt am 25.08.2025
- Energieausweis gültig bis 24.08.2035
- Heizungsart Gas-Heizung
- Befeuerung / Energieträger Gas























